Profitant d’un beau terrain bien exposé, la maison exploite les expositions Sud et Ouest. En effet l’accès sur rue est exposé eu Nord et un immeuble d’habitations occupe le terrain voisin à l’Est.
L’implantation de la maison sur le terrain permet de se couper de ce vis-à-vis et d’ouvrir les vues au Sud Ouest où une partie du terrain est réservé à la future construction d’une piscine.
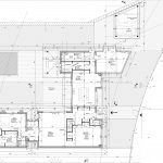
Cette forme en L aménage une terrasse abritée et intime dans sa partie centrale.Le rez de chaussée est dédié aux pièces à vivre et à la suite parentale et l’étage aux chambres d’enfants qui profitent d’une terrasse.
L’implantation de la maison sur le terrain permet de se couper de ce vis-à-vis et d’ouvrir les vues au Sud Ouest où une partie du terrain est réservé à la future construction d’une piscine.
Cette forme en L aménage une terrasse abritée et intime dans sa partie centrale.Le rez de chaussée est dédié aux pièces à vivre et à la suite parentale et l’étage aux chambres d’enfants qui profitent d’une terrasse.











