Construction d’une maison contemporaine en lisière du bois de Rueil-Malmaison

Maison individuelle à ossature bois

[/vc_ro

Environnement

projet réalisé en collaboration avec Jean Julien-Laferrière,

Le site fait une large place à la nature en étant côtoyé par la forêt.Le terrain regroupe les parcelles cadastrales référencées BW 210-883-941-954-955-960-961-962 et 963 pour une superficie totale de 3.194m².
Il se situe en lisière de forêt à l’Est et est fortement boisé. Il présente une déclivité marquée de l’ordre de 15%, descendante d’Est en Ouest. Des perspectives sur le grand paysage s’offrent ainsi à l’Ouest.
Un accès principal existe depuis la rue avec une plateforme en stabilisé ainsi qu’un second depuis le chemin rural 152 au Nord. La parcelle n’est pas construite.

Parti-pris architectural et volumétrie

Le choix du mode constructif et d’une partie du revêtement extérieur s’est porté sur le bois notamment pour répondre à une volonté de dialogue avec l’environnement naturel du projet.
L’impact de la construction sur le terrain sera limité et contrôlé. En effet, l’accès existant sera utilisé, minimisant les interventions de terrassement. De même, l’implantation du volume de la construction a été conçue dans le respect de la déclivité naturelle du site. En aval, la construction sera en partie en surplomb du terrain naturel. En amont, un léger décaissement sera effectué afin d’aménager une terrasse en lames de boi.
b) L’implantation, l’organisation, la composition et le volume des constructions nouvelles, notamment par rapport aux constructions ou paysages avoisinants
L’implantation de la maison tient compte de la morphologie du terrain et de la localisation des arbres présents sur le terrain.
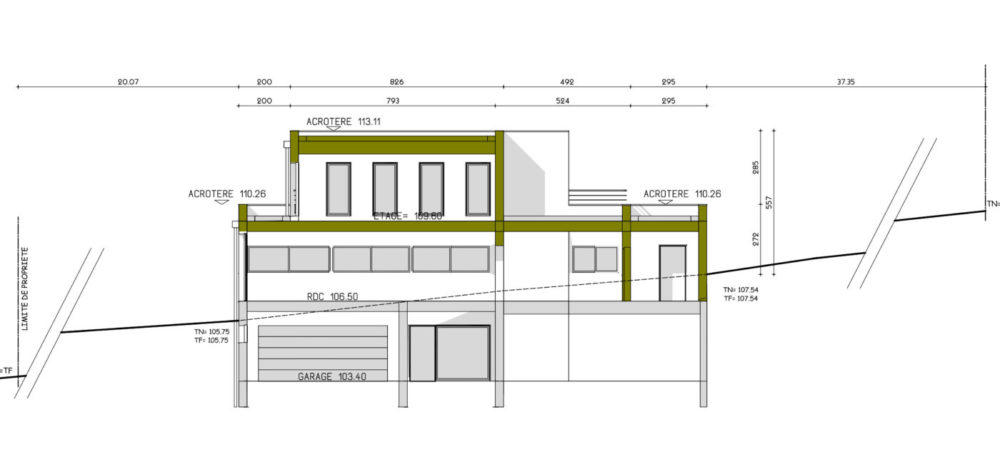
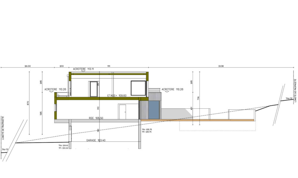
Le projet se développe sur trois niveaux. Sa compacité permet de limiter son emprise au sol.
• Le garage, situé au niveau inférieur est accessible par une rampe qui profite d’un accès existant et d’une plateforme existante permettant de limiter l’impact du terrassement. L’accès à la maison se fait également depuis ce niveau
inférieur
• Le niveau intermédiaire est dédié aux pièces à vivre et à deux chambres. L’orientation privilégie le Sud et sera prolongée par une terrasse généreuse construite sur pilotis en lévitation au-dessus du terrain naturel ainsi préservé.
• L’étage supérieur consacré à des chambres et un bureau permet de profiter de terrasses et de vues panoramiques
c) Le traitement des constructions, clôtures, végétations ou aménagements situés en limite de terrain
Les clôtures seront inchangées et doublées par endroits de haies végétales d’essences locales denses à feuillage persistant
Les clôtures seront inchangées et doublées par endroits de haies végétales d’essences locales denses à feuillage persistant.

Les eaux de pluie seront dirigées vers une cuve de récupération des eaux de pluie. Un trop-plein permettra ensuite aux eaux de pluie non récupérées d’être infiltrées sur la parcelle au moyen d’un puisard d’infiltration ou d’une tranchée drainante. La capacité du dispositif sera calculée en fonction de la perméabilité du sol et des surfaces de toitures. Par ailleurs, les terrasses extérieures de plain-pied et les zones de circulation et de manoeuvres des véhicules seront revêtues de matériaux drainants.

Matériaux

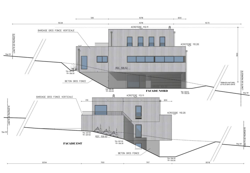
Les parties visibles des murs du niveau inférieur (soubassement) seront traitées en béton décoffré et lasuré gris foncé
– Les façades du niveau intermédiaire (rez de jardin) seront revêtues d’un bardage en lames de bois posées verticalement. Les lames de mélèze seront naturellement vieillies et grisées, provenant de la récupération de bâtiments
anciens
– Les façades du niveau supérieur seront recouvertes de zinc «prépatiné» selon une trame verticale à joint debout
– Les toitures-terrasses non accessibles seront végétalisées (sedum sélectionné suivant la zone géographique)
– Les toitures-terrasses accessibles seront recouvertes de lames de bois
– Les menuiseries extérieures seront en aluminium de teinte grise correspondant au ral 7016 (anthracite)
– Les garde-corps seront en acier galvanisé et peints en gris (ral 7016 ou similaire)
– Les «couvertines» qui recouvrent les murs d’acrotères seront en zinc patiné ou en tôle RAL 7016

Spécificités techniques

  • Surface de planchers = 255m²

  • Année de construction : en cours

  • Niveau de performances thermiques : RT 2012

  • Consommation : 67,4 kWh /m2/an

COMPOSITION DU MUR :
• Revêtement intérieur : Plaques de plâtre
• Frein vapeur
• Epaisseur de l’ossature : 200mm
• Essence et provenance ossature : Sapin du Nord
• Isolant et épaisseur : 200 mm laine de bois + 35mm extérieur en laine de bois
• Pare-pluie : Membrane perméable en polypropylène non tissé
• Revêtement extérieur : Bardage en lames de mélèze pré-grisé

COMPOSITION DE LA TOITURE TERRASSE SUPERIEURE :
• Dalle : Solives et OSB 16mm + 160mm + 100mm isolation laine de bois
• Isolant et épaisseur : Laine de bois 160mm + 100mm sous étanchéité

TYPE DE MENUISERIES :
• Menuiseries mixtes Bois-Aluminium. Vitrage à isolation renforcée

COMPOSITION DES PLANCHERS :
• Poutres en lamellé-collé et solives bois massif
• Isolation en fibre de bois de 180mm intégrée dans l’épaisseur du plancher

TERRASSE EXTERIEURE :
• Lame d’ipé sur plot réglables + lambourdes


  • Surface créée : 195 m2 habitables + Garage et annexes

Plan et préparation du chantier

Construction et travaux