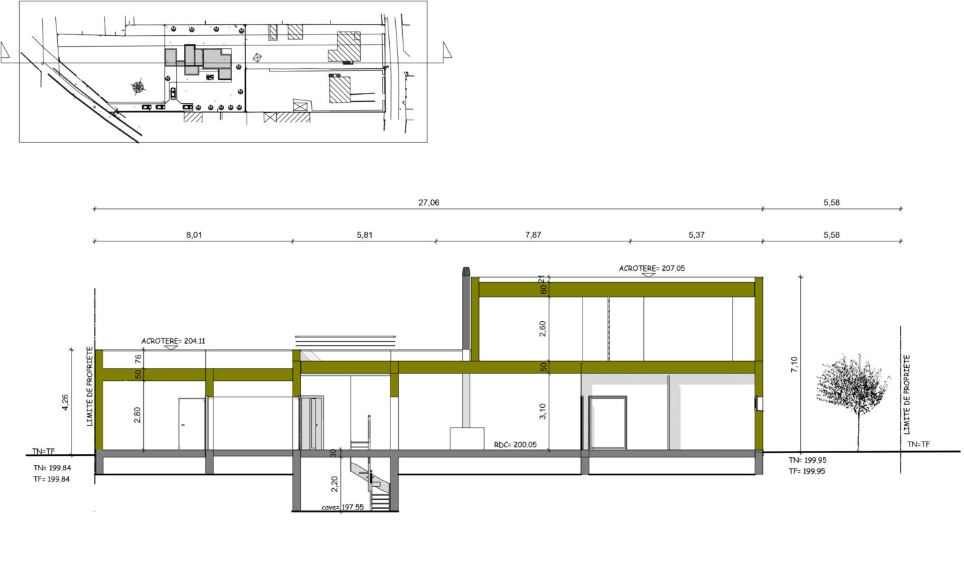
Le terrain se situe chemin de la Marinière à Verrière le Buisson, 91370. Il est issu de la division de la parcelle cadastrée. Il représente le lot 2 pour une surface de 687m²
L’accès s’effectue au Nord en partie haute de la parcelle. La déclivité est marquée, en moyenne de 25%, en pente descendante au Sud, dégageant ainsi des vues. La végétalisation
existante de la parcelle est dense et composée principalement de broussailles, d’arbustes et d’arbres de taille modeste. Cette densité végétale existe notamment au niveau de l’
accès à la parcelle.
Les réseaux sont disponibles en partie basse du terrain.











