Maison d’architecte à Monfort-Lamaury

Maison individuelle à ossature bois

Environnement

La parcelle présente une déclivité moyenne de 7 à 8%, en pente montante depuis la voie d’accès vers le Nord et la forêt. Elle s’étend en longueur du Sud au Nord, depuis la voie d’accès pour aboutir à la lisière de la forêt de Marly. Le terrain est très largement boisé et une maison existante a été démolie.

Parti-pris architectural et volumétrie

La maison reprend en partie la localisation de la maison d’origine, permettant notamment de préserver l’espace boisé alentour. Le projet est conçu sur deux niveaux habitables en toitures terrasses Ces dispositions permettent notamment de : Limiter l’emprise au sol et préserver l’aspect paysagé marqué de la parcelle, minimiser l’impact visuel du bâtiment, conserver une partie de la dalle basse existante conserver et utiliser une partie des murs de soubassement qui aideront à gérer la déclivité naturelle du terrain, profiter des orientations et de la vue au Sud mais également de permettre un accès facile de plain pied au Nord et une perspective sur cette partie importante du jardin Le langage architectural est contemporain. Il utilise le mode constructif léger et expressif de l’ossature bois et des toitures terrasses, donnant ainsi la part belle à la lisibilité des volumes, aux surfaces vitrées, aux ombres des brises-soleil, et enfin… au bois !

Matériaux

Les murs extérieurs de la maison sont revêtus d’un bardage en bois naturel revêtu d’une couche de « pré-grisaillement »        Le volume Sud à rez de chaussée est enduit de ton gris foncé                                                                                                                      Le volume Nord destiné est enduit de ton « beige pierre                                                                                                                                Toitures terrasses de la maison et du auvent/garage revêtues d’une membrane d’étanchéité                                                  Gouttières et descentes EP en zinc                                                                                                                                                                Menuiseries extérieures en aluminium de ton gris foncé (ral 7035 ou 7016 ou similaire)                                                          Terrasses en lames de bois naturel                                                                                                                                                        Chauffage par pompe à chaleur                                                                                                                                                                      VMC simple flux hygro B                                                                                                                                                                                   Eau chaude sanitaire par ballon thermodynamique                                                                                                                                  Sols en béton ciré, parquet et carrelage

Spécificités techniques

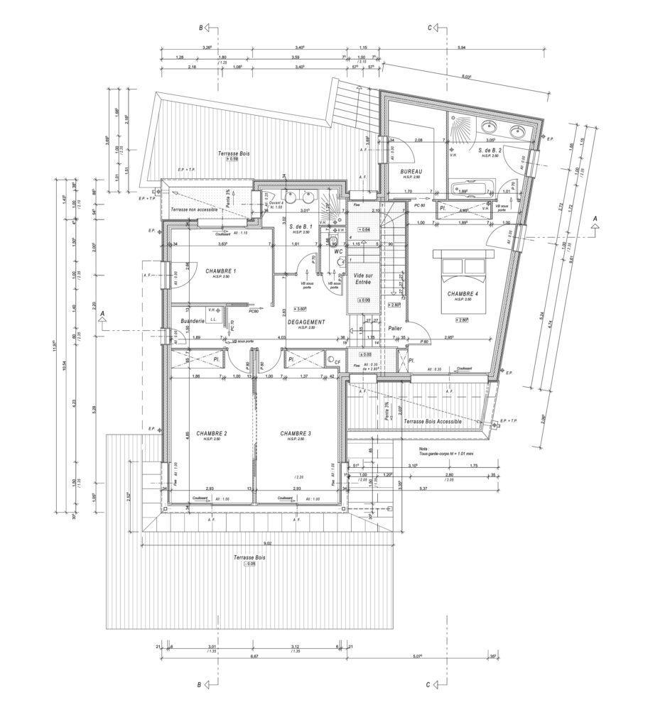
  • Surface de planchers = 200 m²

  • Année de construction : 2013

  • Niveau de performances thermiques : RT 2012

  • Consommation : 67,4 kWh /m2/an

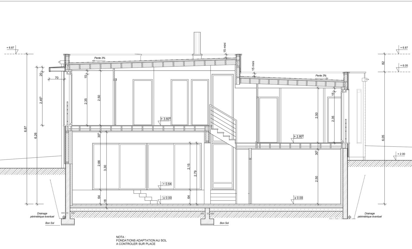
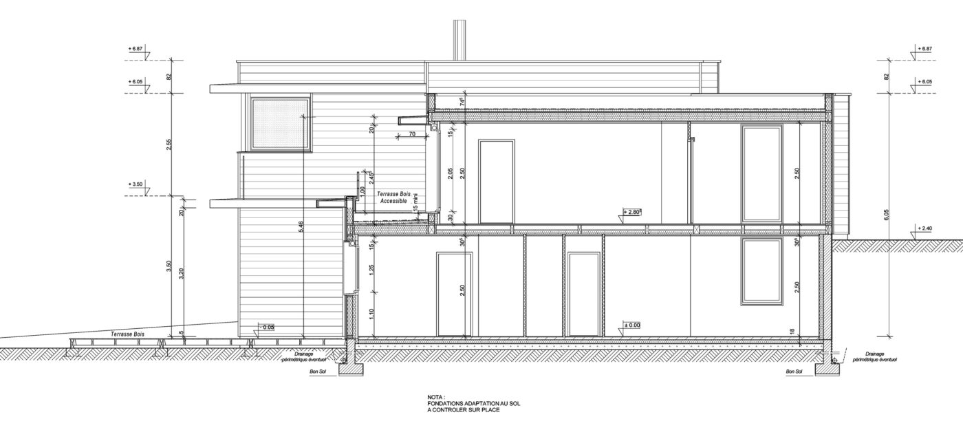
COMPOSITION DU MUR :
• Revêtement intérieur : Plaques de plâtre
• Frein vapeur
• Epaisseur de l’ossature : 145mm
• Essence et provenance ossature : Sapin du Nord
• Isolant et épaisseur : 145 mm laine de bois + 35mm extérieur en laine de bois
• Pare-pluie : Membrane perméable en polypropylène non tissé
• Revêtement extérieur : Bardage en lames de mélèze pré-grisé

COMPOSITION DE LA TOITURE TERRASSE SUPERIEURE :
• Dalle : Solives et OSB 16mm + 160mm + 100mm isolation laine de bois
• Isolant et épaisseur : Laine de bois 160mm + 100mm sous étanchéité

TYPE DE MENUISERIES :
• Menuiseries mixtes Bois-Aluminium. Vitrage à isolation renforcée

COMPOSITION DES PLANCHERS :
• Poutres en lamellé-collé et solives bois massif
• Isolation en fibre de bois de 180mm intégrée dans l’épaisseur du plancher

TERRASSE EXTERIEURE :
• Lame d’ipé sur plot réglables + lambourdes


  • Surface créée : 195 m2 habitables + Garage et annexes

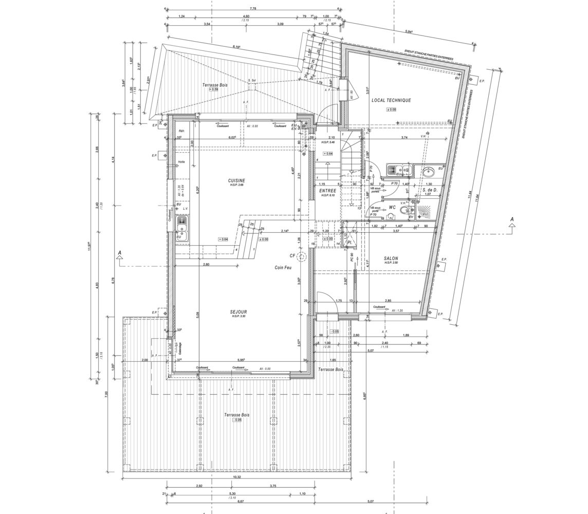
Plan et préparation du chantier

Construction et travaux